25G127-1:工业上楼建筑设计与施工深化示例(一)
- 图集编号
- 25G127-1
- 图集名称
- 工业上楼建筑设计与施工深化示例(一)
- 定价
- 148.00 元
- 开本
- 8 开
- 主编单位
- 中国建筑标准设计研究院有限公司
- 佛山市城市建设工程有限公司
- 广东省建筑设计研究院集团股份有限公司
内容简介
本图集以华南地区某典型工业上楼产业园项目为蓝本,以设计示例的方式表达工业上楼产业园项目从设计策划、方案设计、施工图设计、施工安装深化等全过程内容,用于指导设计人员掌握工业上楼建筑设计的一般方法及注意事项,指导施工人员了解工业上楼产业园项目施工安装深化要点,也可作为产业园项目开发、监理、咨询等专业人员和建筑院校师生的参考资料。本图集主要编制了设计策划、方案设计示例、施工图设计示例、施工安装深化示例四大部分,其中施工图设计示例包含建筑、结构、给排水、暖通、电气五大专业,各示例均选用同一工程蓝本进行编制,方便不同示例之间相互配合使用和参考。
设计策划部分提出了适用于工业上楼产业园项目的设计流程,明确了各阶段工作内容、方法和注意事项,强调了工业上楼产业园项目设计策划的重要性,并参考国内各地先进经验,为通用型工业上楼生产用房的关键建筑设计参数提出指引,可作为一般性参考。
方案设计示例从园区总体布局、园区交通、配套设施等角度展示了工业上楼产业园区的布置要点。从平面设计、层高层数、垂直交通等关键设计参数出发,展示了工业上楼建筑方案的生成过程,提出了具有实际指导意义的工业上楼建筑方案设计方法。
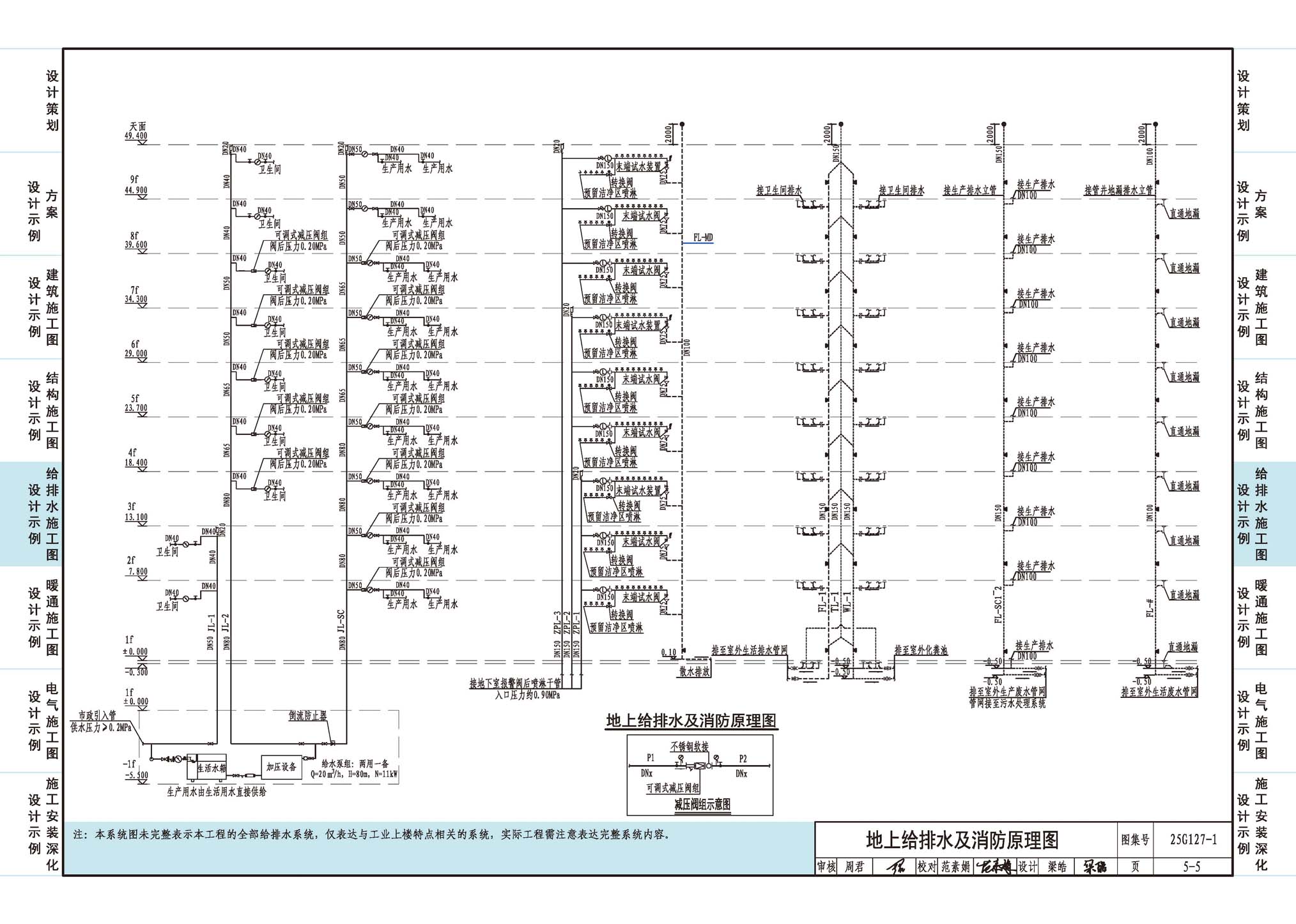
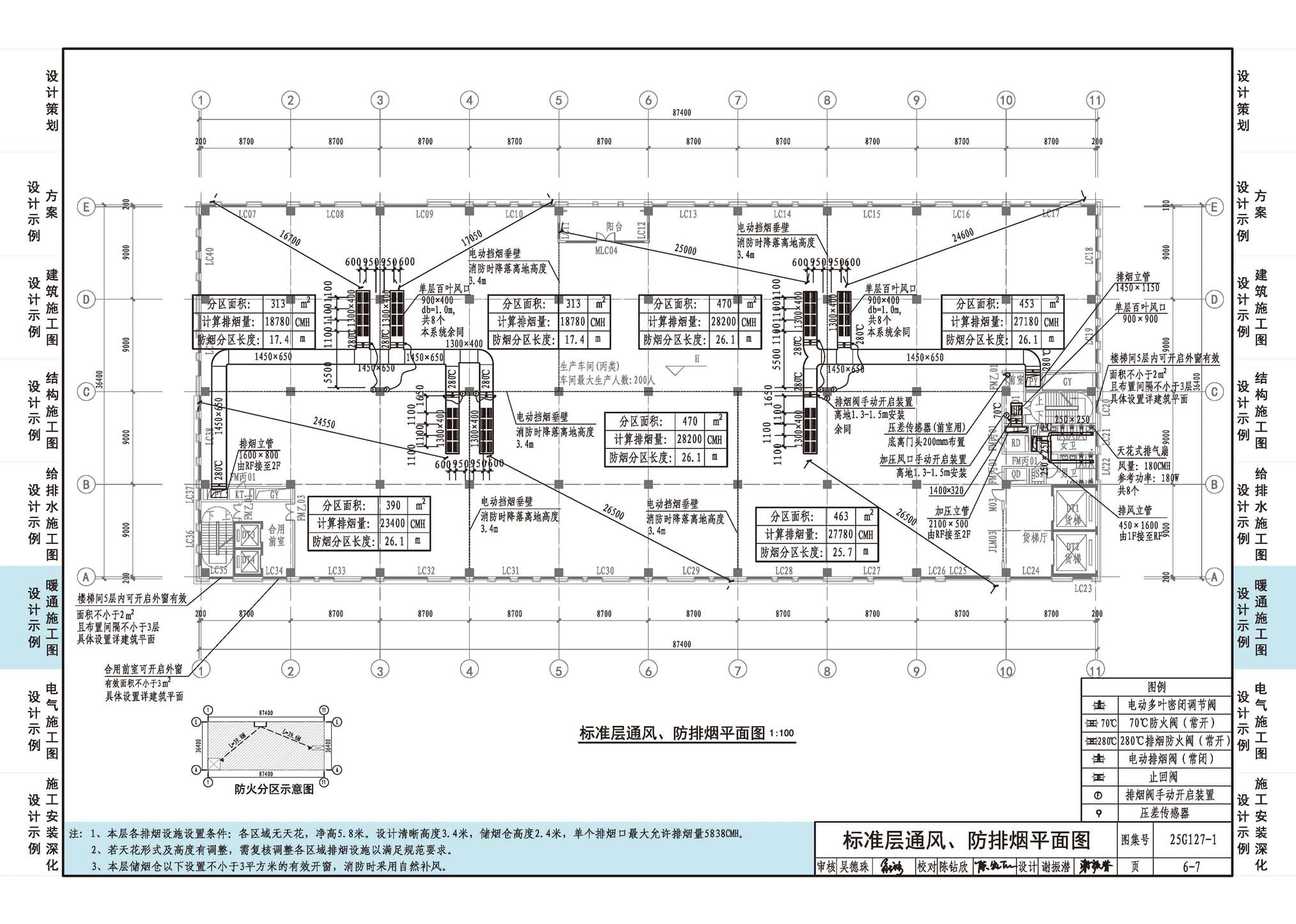
施工图设计示例以华南地区某典型工业上楼产业园项目为蓝本进行提炼编制,按照建筑、结构、给排水、暖通、电气等不同专业,着重从设计说明、设计深度和施工图表达等方面进行展示。可供设计人员在实际工程项目中参考借鉴。
施工安装深化示例选取示例项目中施工安装重难点部位,适用BIM技术进行管线综合优化、节点大样深化、施工模拟、可视化交底等展示,以促进设计和施工人员在实际生产过程中关注和解决施工重难点问题。
本示例介绍了通用型工业上楼厂房建筑设计表达方法以及施工深化应用要点;提出了典型工业上楼建筑设计流程和设计策划要点;给出了不同专业设计图纸的表达方式和深度要求;提供常用施工深化BIM应用要点。对于提高我国工业用地集约利用水平、提供高品质产业空间、加快推进新型工业化进程有着积极的作用,为各地推广建设工业上楼项目提供设计参考和指引,具有良好的经济、社会和环境效益。

